Townhouse for renovation in the center of Beniarbeig
We exclusively offer this 140m2 house for renovation with a project and a license granted, giving the new owners the opportunity to personalize every corner to their liking.
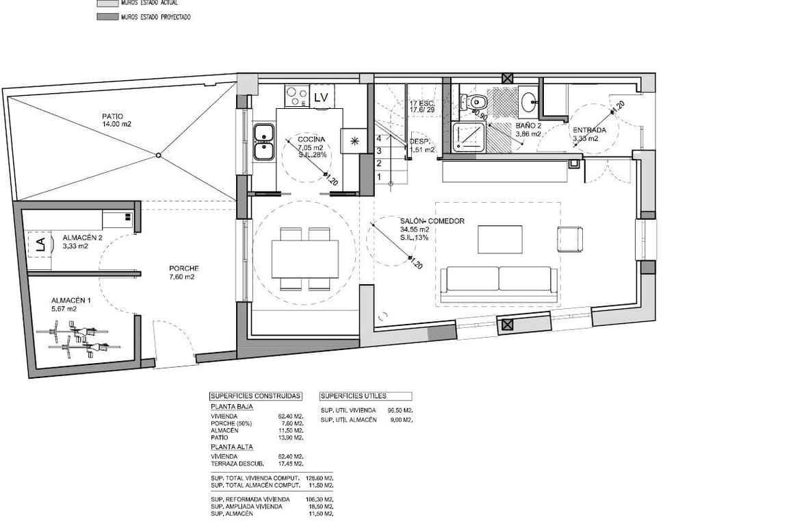
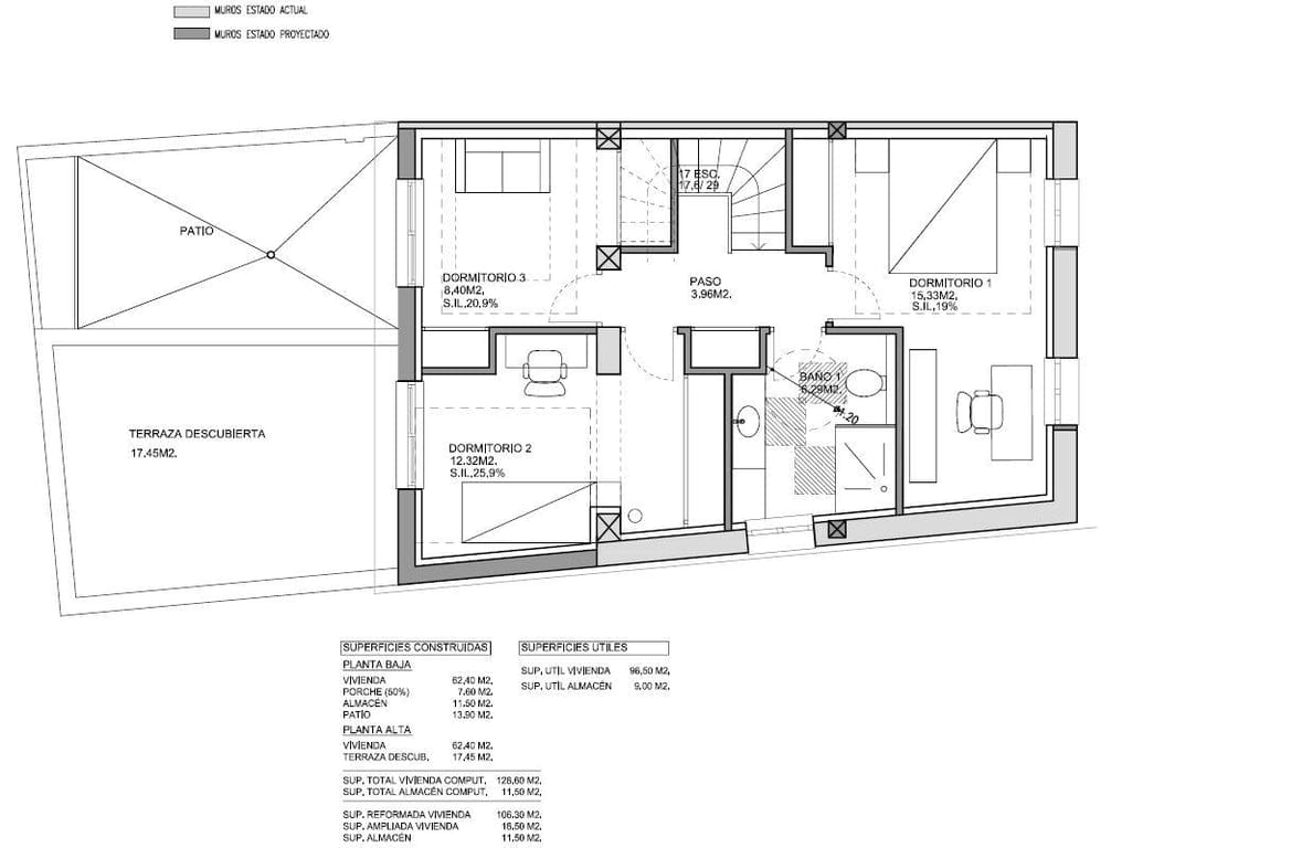
The house, spread over two floors, is on a corner and has two entrances. The roof has been completely renovated, so you can forget about this renovation. As shown in the plans, a spacious entrance hall and a bathroom with a shower are planned, followed by a spacious and bright living room, with a separation to the dining room and kitchen. From the dining room, there is access to a porch, a storage room, and a patio. On the first floor, there are three bedrooms, one with direct access to an open terrace, and a bathroom with a shower. This project is fully customizable. There is also another 162m2 project designed, which could be extended upon request.
This village house is a hidden gem waiting to be transformed into a cozy home. With its excellent location and ample space, it's a fantastic option for those looking for a new project in a charming setting. Located in the heart of Beniarbeig, the house maintains the essence of a traditional village, combining the tranquility of rural life with access to local amenities.